Progettazione della sicurezza delle petroliere e classificazione delle aree pericolose
Tu sei qui: Casa » Notizia » Petroliera » Progettazione della sicurezza delle petroliere e classificazione delle aree pericolose

Progettazione della sicurezza delle petroliere e classificazione delle aree pericolose

numero Sfoglia:0     Autore:Editor del sito     Pubblica Time: 2024-01-05      Origine:motorizzato

Richiesta

facebook sharing button
twitter sharing button
line sharing button
wechat sharing button
linkedin sharing button
pinterest sharing button
whatsapp sharing button
sharethis sharing button
Progettazione della sicurezza delle petroliere e classificazione delle aree pericolose


Petroliera sono navi specializzate nel trasporto di liquidi sfusi e i carichi si riferiscono principalmente al trasporto di petrolio greggio e prodotti petroliferi alla rinfusa con punto di infiammabilità pari o inferiore a 60°C.Secondo la norma IEC-60092-502, le navi che trasportano prodotti petroliferi con punto di infiammabilità inferiore a 60°C presentano un pericolo maggiore e la specifica prevede requisiti più dettagliati per la divisione dell'area pericolosa e tutte le apparecchiature elettriche nell'area pericolosa devono soddisfare i relativi requisiti di esplosione requisiti di prova.La classificazione delle aree pericolose di petroliera è una parte molto importante della loro progettazione di sicurezza.


Petroliera-9


Principi di classificazione delle aree pericolose per le petroliere

La classificazione delle aree pericolose per petroliera è principalmente conforme alla norma IEC-60092-502 per le navi da carico liquide che trasportano liquidi infiammabili con un punto di infiammabilità non superiore a 60°C.Divide le aree pericolose in: Zona 0, Zona 1 e Zona 2, dove la Zona 0 è la più pericolosa e la Zona 2 la meno pericolosa.Le stive di carico, i serbatoi di olio e acqua, qualsiasi tubazione a depressione o altri sistemi di ventilazione nella stessa area delle stive di carico e gli spazi interni contenenti merci o tubazioni e apparecchiature che gestiscono gas o vapori infiammabili sono tutti classificati come Zona 0.


La definizione di Zona 1 è relativamente complessa e comprende quanto segue: a) locali chiusi immediatamente adiacenti alle cisterne del carico liquido;b) compartimenti in cui sono immagazzinate le manichette da carico nonché locali chiusi e semichiusi contenenti linee di carico;e c) aree adiacenti a boccaporti, uscite di gas o vapori, valvole di erogazione del carico, flange dei tubi del carico e valvole di pressione e vuoto nelle cisterne del carico liquido.2 può essere semplicemente inteso come un'estensione della Zona 1, ad esempio locali, ingressi, uscite e aperture di ventilazione e di aerazione della Zona 1.L'estensione verso l'esterno della Zona 1 al confine dell'area del ponte scoperto, come ingressi e uscite, ventilazione e prese d'aria.Inoltre, secondo le caratteristiche della struttura del ponte aperto, l'area della stiva con materiale osseo 'rivolto' fino ad un'altezza di 2,4 metri sopra il ponte è considerata Zona 1, e il ponte con 'rivolto 'Il materiale osseo fino ad un'altezza di 2,4 metri sopra il ponte è considerato Zona 2.


Grafico di classificazione delle aree pericolose delle petroliere


Disposizione e impatto di vari tipi di aperture

Le aperture di petroliera si dividono principalmente nelle seguenti tre tipologie: in primo luogo, le aperture per l'accesso del personale e l'uso quotidiano, quali chiusini, portelli, porte, finestre e portelli di lavaggio;in secondo luogo, la ventilazione della cabina, come ventilazione naturale, ventilazione meccanica, ventilazione a pressione positiva;terzo, il sistema respirabile, come tubi dell'aria, tubi batimetrici, valvole limitatrici di alta pressione, alberi respirabili e dispositivi di rilascio del vuoto.Il primo tipo di apertura deve soddisfare i requisiti di utilizzo dell'equipaggio e prestare la dovuta attenzione all'impatto delle aree pericolose, e la discussione qui si concentra sulla disposizione e sull'impatto della ventilazione dei portelli e di speciali sistemi traspiranti.


Una ventilazione ragionevole ed efficace può prevenire l'accumulo di gas combustibili, solitamente sotto forma di aria aspirata ed aria estratta.Per la ventilazione di luoghi pericolosi, in primo luogo, dovrebbe essere lontana dalla ventilazione di luoghi sicuri;in secondo luogo, l'ingresso dell'aria in luoghi pericolosi dovrebbe trovarsi il più possibile in un'area sicura; se è davvero inevitabile, è necessario consultare tempestivamente la società di classificazione;infine, l'uscita dell'aria non può essere disposta nella zona più pericolosa, pena l'aumento del livello di pericolo.Prendendo la disposizione di ventilazione del vano pompa di un petroliera ad esempio, il compartimento della pompa è adiacente al serbatoio dell'olio di carico di 1 area, a causa dei fattori di funzionamento del personale, quest'area non è un'area inerte, quindi l'ambiente di ventilazione del compartimento della pompa è estremamente importante.Il compartimento della pompa impedisce il pompaggio (30 volte/ora) per la ventilazione, l'ingresso e l'uscita dell'aria del compartimento della pompa devono essere il più lontano possibile da altre fonti di pericolo e le due non possono influenzarsi a vicenda.L'ingresso dell'aria deve trovarsi in un'area sicura, ma secondo le specifiche anche 3 metri attorno all'ingresso dell'aria della camera della pompa costituiscono un'area pericolosa, di cui tenere conto nella progettazione.


Ventilazione dei compartimenti delle pompe di carico


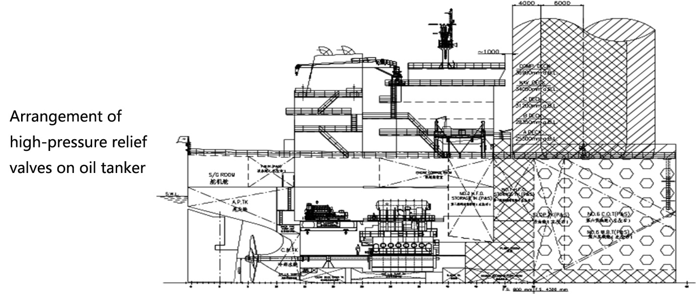
Le valvole di sfiato ad alta pressione, gli alberi di sfiato e i dispositivi di rilascio del vuoto nelle stive del carico sono dispositivi di sfiato specifici per petroliera.Questi dispositivi rilasciano petrolio e gas nell'aria esterna quando la pressione del petrolio e del gas nella stiva è troppo elevata, e pertanto l'IEC ha anche stabilito i limiti più severi alle aree pericolose di tali dispositivi.L'area attorno al tubo di sfiato del carico liquido che fornisce una grande quantità di miscela di gas o vapori generata durante la movimentazione del carico, la zavorra o l'espulsione del gas dalla cisterna del carico liquido, il cilindro verticale di altezza illimitata con un raggio di 6 metri verso l'alto dallo sfiato tubo e l'area del ponte scoperto all'interno di un emisfero con un raggio di 6 metri verso il basso dal tubo di sfiato, o l'area semichiusa del ponte scoperto, appartengono alla Zona 1, e i 4 metri al di fuori della Zona 1 appartengono alla Zona 2 , come mostrato in Fig. In poche parole, la loro sfera di influenza è un cilindro con un raggio di 10 metri e un'altezza illimitata.Il posizionamento dei ventilatori della stiva dovrebbe tenere conto dei seguenti fattori: in primo luogo, tenersi lontani dalla sovrastruttura;in secondo luogo, evitare la ventilazione del magazzino del ponte nella sezione della stiva del carico e dell'albero del faro del ponte;terzo, mantenere una distanza di almeno 10 metri dalla porta del magazzino dell'Arciere.


Disposizione delle valvole limitatrici di alta pressione sulla petroliera


Conclude

Per la progettazione di petroliera, la protezione contro le esplosioni è una parte importante della progettazione della sicurezza, se la progettazione non è corretta, costituirà un grave pericolo per l'uso futuro.I progettisti dovrebbero prestare attenzione alla classificazione delle aree pericolose della petroliera e prestare attenzione al coordinamento delle varie parti nel processo di progettazione, in modo che tutti i tipi di aperture, ventilazione, disposizione dell'aria e della cabina della petroliera può soddisfare i regolamenti e le norme. Qinhai migliora costantemente il proprio livello di gestione interna, enfatizzando il controllo frontale della qualità e la gestione dei processi. Abbiamo ottenuto il certificato di gestione della qualità CCS rilasciato dalla China Classification Society e abbiamo superato la certificazione e la valutazione dell'impatto ambientale e l'accettazione da parte dei dipartimenti governativi. Negli ultimi anni, l'azienda è conforme con lo spiegamento strategico nazionale e i requisiti di informatizzazione e sviluppo intelligente dell'industria navale. Promuovere l''integrazione dei due' e continuare a implementare l'automazione della produzione e la produzione intelligente. Disponiamo di diversi assemblaggi automatici e semiautomatici linee di produzione.

CATEGORIA DI PRODOTTO

Prodotti casuali