Business Tel: +86-0523-88329456
Skype: ruis@tzcp-flooring.com.
E-mail: yu@qinhai-shipping.com
Mobile. +86-13775678891
| Stato di disponibilità: | |
|---|---|
| Quantità: | |
| Area territoriale del cantiere navale Qinhai | 160.000 mq |
| Quantità di ormeggi | 4 |
| Ormeggio | 230mX62,5m, 235mX58m, 235mX51,5m,230mX120m |
| Tonnellaggio di capacità di costruzione | inferiore a 50.000 tonnellate |
| Gru a portale | 6 set |
| Parametri della gru a portale | SWL200ton, SWL150ton, SWL80ton, SWL50ton e SWL 25ton x2 |
| Saldatore di super classe | 268 |
| Team tecnico di ricerca e sviluppo | 400 |
| Capacità annua di costruzione navale | 500.000 DWT |
| Volume annuale di lavorazione dell'acciaio | 40.000 tonnellate |
| Ripostiglio | 1100MQMX2 |
| Sala di rivestimento | 1000MQMX1 |
| Sezioni Sala Installazioni | 2700MQMX1 |
| Sala Taglio | 2100MQMX1 |
▍▏Visualizzazione imbarcazione ▏▍
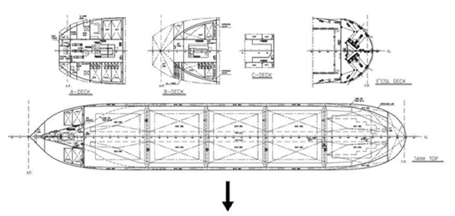
▍▏ Disegno di progetto ▏▍
In base alle esigenze dei diversi clienti, i progettisti navali professionisti progetteranno la tua nave e
fornire disegni per te.
▍▏Qinhai Vendita calda ▏▍
▍▏Real Show del cantiere navale ▏▍
▍▏Profilo aziendale ▏▍
Tai Zhou Qin Hai Spedizione Scienza e Tecnologia Co., Ltd.
è stata fondata nel 2018. As avviato e investito congiuntamente dal governo locale, con un capitale sociale
di 80 milioni di RMB. E abbiamo creato una base di tirocinio locale per la formazione dei talenti del settore della costruzione navale.
Qinhai si trova sulla via navigabile dorata del fiume Yangtze, vicino al ponte sul fiume Changtai Yangtze, con
comodo trasporto via acqua e via terra.
Casi di clienti stranieri
Con una qualità più eccellente, consegne più brevi, prestazioni più elevate, costi inferiori, qinhai collabora sinceramente
con clienti in patria e all’estero per diventare davvero globali.
▍▏Assistenza e post-vendita ▏▍
Siamo in grado di fornire la sostituzione di tutte le parti, riparazioni della macchina, aggiornamenti della verniciatura, nonché ristrutturazione dello scafo,
progettare e costruire nuove imbarcazioni.
▍▏Certificato ▏▍
Siamo un cantiere navale che costruisce solo nuove navi d'alto mare, non per il commercio di navi usate o vecchie. Per una migliore offerta e comunicazione, abbiamo alcune domande da confermare con te:
1. Qual è il tuo budget costruito?
2. Che ne dici del DWT o del TEUS per la nave che desideri?
3. A quale tipo di imbarcazione sei interessato?Portarinfuse, nave cargo generica, portacontainer o petroliera?
4. Hai un disegno di navi?
5. dov'è l'area di navigazione di questa nave?Mare aperto o lungo la costa?
6. Questa nave deve installare la gru?se necessario, quindi quanti set ti servono?
7. Raccontaci ulteriori requisiti sulle specifiche di costruzione di questa nave?
8. Che ne dici della marca del motore principale, del generatore principale, degli ingranaggi di navigazione di cui hai bisogno?
9. Quale società di Classificazione verresti scelta?BV o CCS?
Se hai altre esigenze, contattami! Attendo con ansia la vostra risposta e collaborazione.
| Area territoriale del cantiere navale Qinhai | 160.000 mq |
| Quantità di ormeggi | 4 |
| Ormeggio | 230mX62,5m, 235mX58m, 235mX51,5m,230mX120m |
| Tonnellaggio di capacità di costruzione | inferiore a 50.000 tonnellate |
| Gru a portale | 6 set |
| Parametri della gru a portale | SWL200ton, SWL150ton, SWL80ton, SWL50ton e SWL 25ton x2 |
| Saldatore di super classe | 268 |
| Team tecnico di ricerca e sviluppo | 400 |
| Capacità annua di costruzione navale | 500.000 DWT |
| Volume annuale di lavorazione dell'acciaio | 40.000 tonnellate |
| Ripostiglio | 1100MQMX2 |
| Sala di rivestimento | 1000MQMX1 |
| Sezioni Sala Installazioni | 2700MQMX1 |
| Sala Taglio | 2100MQMX1 |
▍▏Visualizzazione imbarcazione ▏▍
▍▏ Disegno di progetto ▏▍
In base alle esigenze dei diversi clienti, i progettisti navali professionisti progetteranno la tua nave e
fornire disegni per te.
▍▏Qinhai Vendita calda ▏▍
▍▏Real Show del cantiere navale ▏▍
▍▏Profilo aziendale ▏▍
Tai Zhou Qin Hai Spedizione Scienza e Tecnologia Co., Ltd.
è stata fondata nel 2018. As avviato e investito congiuntamente dal governo locale, con un capitale sociale
di 80 milioni di RMB. E abbiamo creato una base di tirocinio locale per la formazione dei talenti del settore della costruzione navale.
Qinhai si trova sulla via navigabile dorata del fiume Yangtze, vicino al ponte sul fiume Changtai Yangtze, con
comodo trasporto via acqua e via terra.
Casi di clienti stranieri
Con una qualità più eccellente, consegne più brevi, prestazioni più elevate, costi inferiori, qinhai collabora sinceramente
con clienti in patria e all’estero per diventare davvero globali.
▍▏Assistenza e post-vendita ▏▍
Siamo in grado di fornire la sostituzione di tutte le parti, riparazioni della macchina, aggiornamenti della verniciatura, nonché ristrutturazione dello scafo,
progettare e costruire nuove imbarcazioni.
▍▏Certificato ▏▍
Siamo un cantiere navale che costruisce solo nuove navi d'alto mare, non per il commercio di navi usate o vecchie. Per una migliore offerta e comunicazione, abbiamo alcune domande da confermare con te:
1. Qual è il tuo budget costruito?
2. Che ne dici del DWT o del TEUS per la nave che desideri?
3. A quale tipo di imbarcazione sei interessato?Portarinfuse, nave cargo generica, portacontainer o petroliera?
4. Hai un disegno di navi?
5. dov'è l'area di navigazione di questa nave?Mare aperto o lungo la costa?
6. Questa nave deve installare la gru?se necessario, quindi quanti set ti servono?
7. Raccontaci ulteriori requisiti sulle specifiche di costruzione di questa nave?
8. Che ne dici della marca del motore principale, del generatore principale, degli ingranaggi di navigazione di cui hai bisogno?
9. Quale società di Classificazione verresti scelta?BV o CCS?
Se hai altre esigenze, contattami! Attendo con ansia la vostra risposta e collaborazione.
Business Tel: +86-0523-88329456
Skype: ruis@tzcp-flooring.com
E-mail: yu@qinhai-shipping.com
Mobile. +86-13775678891
Tai Zhou Qin Hai Shipping Science and Technology Co., Ltd © 2022 - ALL RIGHTS RESERVED